Listing Tools

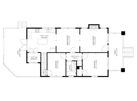
THIS...is a classic Westside brick bungalow featuring all of the original character and craftsmanship of an early 1900's cottage and the benefits of a complete recent renovation. The project extended the footprint of the home and finished out the basement resulting in 3 bedrooms, 2 full bathrooms, and living room spaces on both levels. The kitchen was expanded and all replaced - now featuring ample cabinetry, an island with bar seats, granite countertops, a tile backsplash with under-cabinet lighting, and all stainless steel appliances. The lower level has a private outside entrance that allows autonomous occupancy and potential for a homestay AirBnB. This place lives well with an efficient & functional floor plan, original hardwoods & new LVP flooring, classic millwork, updated period tile baths, a killer kitchen, and nice outdoor living options. It lives smart with quality replacement windows, recent roof, natural gas HVAC, a tankless water heater, and updated electrical & plumbing. 46 Belmont is well sited on a large level lot above a peaceful street with plenty of parking and a block from amenities like Leo's House of Thirst, El Tropical Mexican, The Odd, Diatribe Brewing Co, Mocha Box Coffee, and plenty more. Owner has not used fireplace.

Property Details of 46 Belmont Avenue

Map Location

Driving Directions

Listed by Jody Whitehurst of Town and Mountain Realty (jody@jodywhitehurst.com)

Broker Reciprocity © 2026 Listings courtesy of Canopy MLS as distributed by MLS GRID. IDX information is provided exclusively for consumers’ personal non-commercial use and may not be used for any purpose other than to identify prospective properties consumers may be interested in purchasing. The IDX data is deemed reliable but is not guaranteed by MLS GRID and may be subject to an end user license agreement prescribed by the Member Participant’s applicable MLS.  Based on information submitted to the MLS GRID as of January 24, 2026 6:15 AM EST . All data is obtained from various sources and may not have been verified by broker or MLS GRID. Supplied Open House Information is subject to change without notice. All information should be independently reviewed and verified for accuracy. Properties may or may not be listed by the office/agent presenting the information. Some IDX listings have been excluded from this website.

Hi there! How can we help you?

Contact us using the form below or give us a call.

Send Us A Message:

To opt out, you can reply 'stop' at any time or click the unsubscribe link in the emails. Message and data rates may apply.

Do not fill in this field:

This site is protected by reCAPTCHA and the Google Privacy Policy and Terms of Service apply.

Hi there! How can we help you?

Contact us using the form below or give us a call.

Send Us A Message:

Do not fill in this field:

This site is protected by reCAPTCHA and the Google Privacy Policy and Terms of Service apply.

Hi there! How can we help you?

Contact us using the form below or give us a call.

Send Us A Message:

Do not fill in this field:

This site is protected by reCAPTCHA and the Google Privacy Policy and Terms of Service apply.

Do not fill in this field:

This site is protected by reCAPTCHA and the Google Privacy Policy and Terms of Service apply.

Do not fill in this field:

This site is protected by reCAPTCHA and the Google Privacy Policy and Terms of Service apply.

Do not fill in this field:

This site is protected by reCAPTCHA and the Google Privacy Policy and Terms of Service apply.

$

Do not fill in this field:

This site is protected by reCAPTCHA and the Google Privacy Policy and Terms of Service apply.